Nearby Schools
Data provided by GreatSchools.org © 2026. All rights reserved.

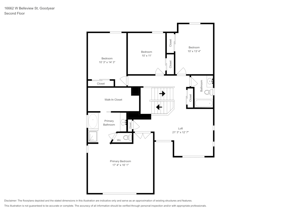
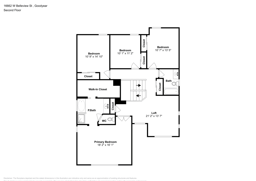
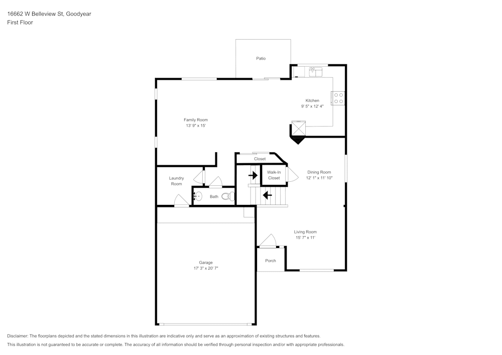
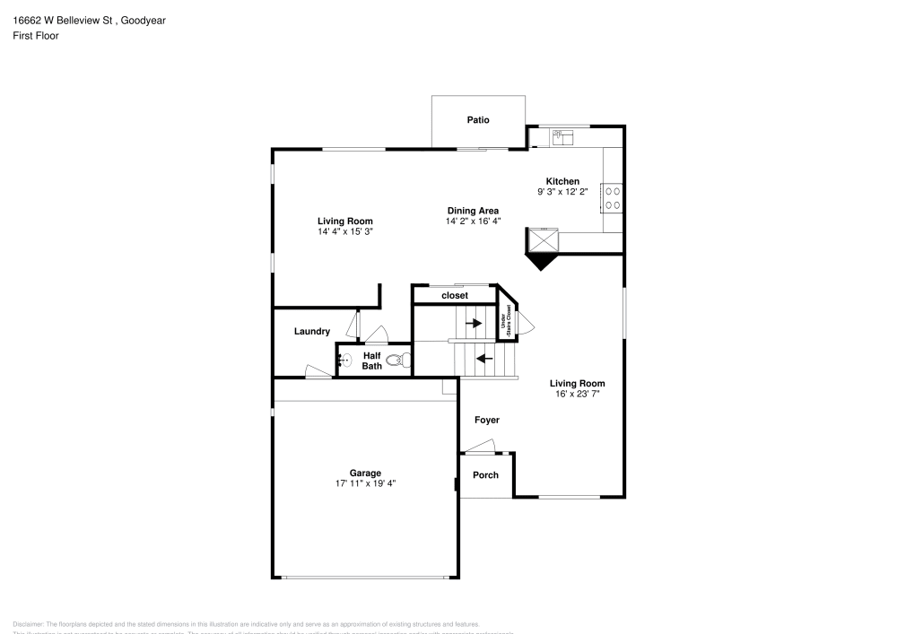
This is the house you've been looking for. It's welcoming, stylish and comfortable. A breathtaking entryway and a functional design all come together to make a comfortable interior ready for you to transform it into your ideal home. Luxury vinyl plank and premium tile flooring runs throughout the home's living area. The open liv
This is the house you've been looking for. It's welcoming, stylish and comfortable. A breathtaking entryway and a functional design all come together to make a comfortable interior ready for you to transform it into your ideal home. Luxury vinyl plank and premium tile flooring runs throughout the home's living area. The open living area gives you plenty of space for a dining room and entertainment area. The comfortable kitchen space is complemented with sleek countertops, premium cabinets, and stainless-steel appliances. Meal times and household gatherings will be even sweeter in this kitchen space you can make your own. Turn this fenced backyard into your ideal outdoor space. Set outdoor meals on the patio, make room for outdoor plants and decorate as you see fit to make the yard a space that reflects your sense of style. Apply online now!
This home includes a washer & dryer, included in your lease for just $40 per month in addition to rent.
Our Lease Easy bundle - which includes Smart Home, Air Filter Delivery, and Utilities Management - is a key part of your worry-free leasing lifestyle. These services are required by your lease at an additional monthly cost. Monthly fees for Internet Package, pets and swimming pools may also apply.
This Invitation Home is being enjoyed by another resident, but it will be available soon. You can still apply – contact us for more details or apply now.
Unless otherwise provided in the lease, utilities are the responsibility of the resident and are not included in the Total Monthly Rent.
Please read the Qualification Requirements and Leasing Fees Guide before applying for a lease.
Data provided by GreatSchools.org © 2026. All rights reserved.
Our bundle of services is part of the worry-free leasing lifestyle. You get Air filter delivery, Utility Management and Smart Home technology built into your lease for a small fee.
Learn moreOur local team of maintenance pros ensures a hassle-free move-in and conducts proactive visits. Easily request service on the app and there’s always 24/7 emergency services.
Learn moreYour pets are going to love living in a house with spaces you can shape to fit their lifestyle. Up to 3 pets are welcome in our homes and yards. Pet rent and other fees apply.
Learn moreLive freer in an updated house and an awesome neighborhood with Smart Home technology. It’s all supported by our local team of leasing pros.
Learn moreBrokerage License Number: LC685950000
Lease your Invitation Home through InvitationHomes.com or with the help of a licensed leasing agent. All leasing information is believed to be accurate, but changes may have occurred since photographs were taken and square footage is estimated. Furthermore, prices and dates may change without notice. Invitation Homes does not lease homes through Craigslist or other classified advertising services. Please note this home may be governed by a HOA and could require additional applications and/or fees. An account set-up fee will be charged on all new leases. To better serve our residents, Invitation Homes is pet-friendly with some breed restrictions and allows up to three pets with a monthly fee. If your home has a pool, a monthly fee is applied. Broker participation welcome, so please refer to MLS. Please contact your leasing agent for more information.